Property Scores
Offer Zone
Overview
Area (sq.ft.):
- 4200
Property Facing:
- East
Furnishing :
- Not Applicable
Possession:
- Under Devep
Why Buy This Property?
About This Listing
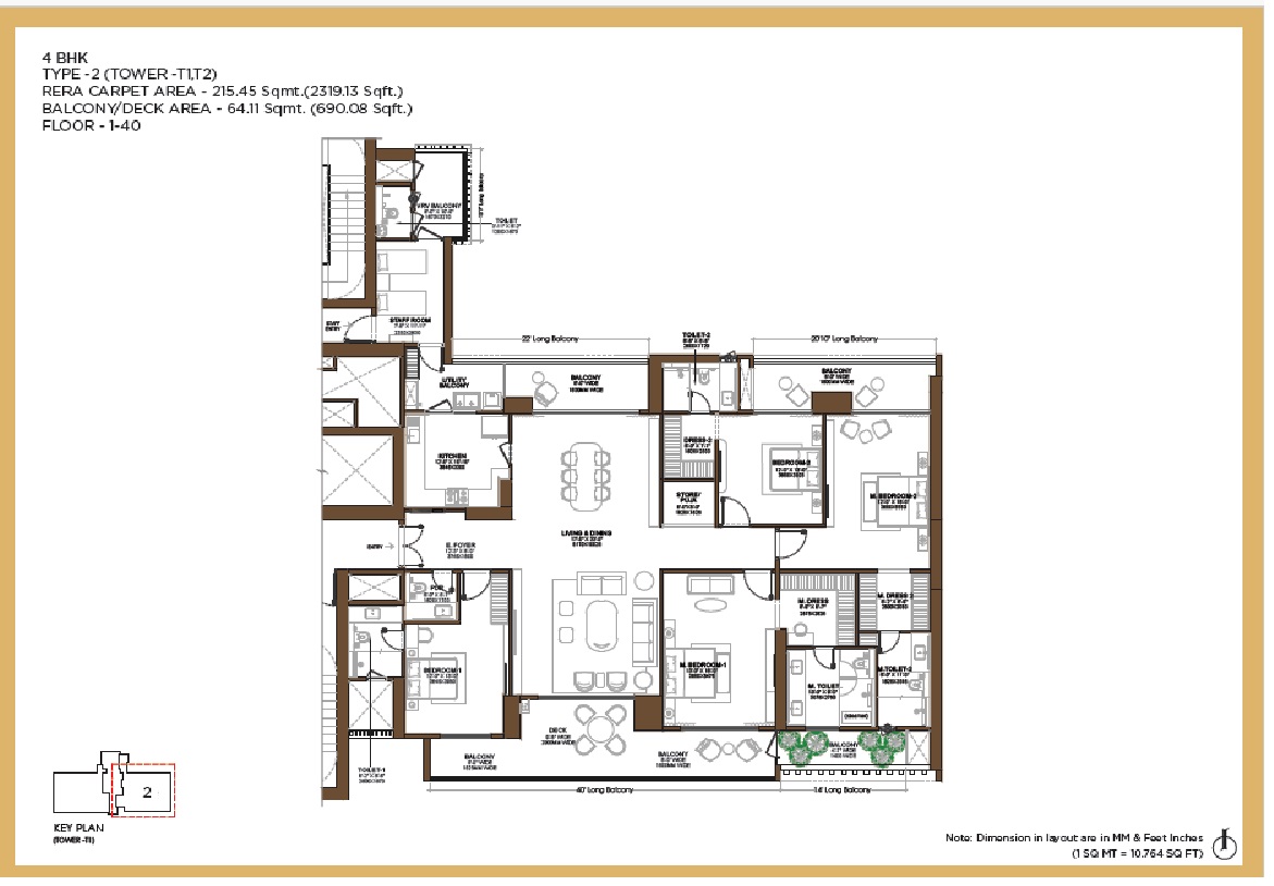
–Birla Arika is a premium residential development located in Sector 31, Gurgaon, offering a refined lifestyle for buyers who value space, privacy, and modern comforts.
-Developed by Birla Estates, the project spans approximately 13.3 to 13.5 acres, making it one of the larger low-density luxury developments in the city.
-The project is thoughtfully planned with:
-Around 322 to 386 exclusive residences
-Spacious 4 BHK + staff apartments
-Unit sizes ranging from ~4,200 sq. ft. to 4,900 sq. ft.
-Homes are designed to deliver a premium experience, featuring:
-Expansive living and dining areas
-Large balconies with open views
-High-end interiors and quality fittings
-Ample natural light and ventilation
-The birla arika floor plan focuses on:
-Efficient space utilization
-Clear separation between private and common areas
-Functional kitchen and utility zones
-Dedicated staff quarters for convenience
-Moreover, the birla arika price starts from approximately ₹10.5 Cr+, depending on the unit size and configuration.
-With possession expected around 2031, the project is ideal for buyers planning long-term luxury living in a prime Gurgaon location.
-Overall, it combines spacious homes, premium amenities, and a strategic location, making it a strong option for high-end buyers.
Birla Arika Amenities
Residents can enjoy a wide range of lifestyle amenities designed to enhance daily living and promote wellness.
Key amenities include:
-Grand Clubhouse for social and recreational activities
-Swimming Pools for leisure and relaxation
-Fully Equipped Gymnasium and Fitness Center
-Wellness Zones and Spa Facilities
-Jogging and Walking Tracks
-Landscaped Gardens and Themed Open Spaces
-Children’s Play Area
-Sports Facilities and Activity Zones
-Indoor Games and Community Spaces
-24×7 Security with advanced systems
-Dedicated Parking Facilities
In addition, these amenities create a balanced lifestyle, combining luxury, fitness, and relaxation within the community.
Amenities
FAQ
The project offers ultra-luxury 4 BHK + staff residences with sizes ranging from approximately 4,200 to 4,900 sq. ft.
The development includes around 322 to 386 exclusive residential units.
The birla arika price starts from approximately ₹10.5 Cr+ and may increase based on size and configuration.
The project is spread across approximately 13.3 to 13.5 acres with extensive open and landscaped spaces.
Possession is expected around December 2031, subject to construction progress and approvals.
Details
- Amenities Swimming PoolClub HousePower BackupLift24 x 7 SecurityCar ParkingVisitor ParkingCCTV SurveillanceInternet / Wi-FiChildren's Play AreaView of LandmarkBalcony or Terrace
Map Location
Birla Estates is a reputed real estate developer known for delivering high-quality residential and commercial projects. Key highlights of the developer: Strong focus on design excellence and construction quality Commitment to customer satisfaction and transparency Experience in delivering premium and luxury developments With birla arika gurgaon, the developer aims to offer a modern luxury community that meets the expectations of high-end homebuyers. Consequently, buyers can expect reliable construction, thoughtful design, and long-term value.
Walk Score
Be the first to review “Birla Arika Sector 31, Sohna Road Gurgaon” Cancel reply
Get in touch with listing owner (Guest)
Smartworld The Edition Sector 66, Gurgaon
- Golf Course Extension Road, Gurugram
- "Zero Brokerage" Offer Zone
- USP's Prime Location Golf Course Ext. High-Rise Living Skyline Views Spacious Homes Smart Layouts USP's
- FAQ Q: What types of apartments are available at smartworld the edition? A: The project offers luxury 3.5 BHK and 4.5 BHK + utility apartments Q: Where is the project located? A: It is located in Sector 66, Gurgaon, on Golf Course Extension Road Q: How many units and towers are there? A: The development consists of around 956 units across six high-rise towers Q: What is the expected possession timeline? A: Possession is expected by February 2031 Q: What amenities are included? A: It offers a wide range of amenities including a rooftop pool, clubhouse, gym, sports facilities, and landscaped greens. FAQ
- 2945 Area (sq.ft.)
- 3 BHK BHK
- Property Facing West Property Facing
- Not Applicable Furnishing
- Under Devep Possession
Paras The Floret Sector 59, Gurgaon
- Golf Course Extension Road, Gurugram
- "Zero Brokerage" Offer Zone
- USP's Low-Rise Living Private Floors Boutique Development Low Density Prime Sector 59 Strong Connectivity USP's
- FAQ Q: What types of homes are available at Paras The Floret? A: The project offers 2 BHK and 3 BHK independent floors, designed for luxury low-rise living. Q: What is the approximate price range? A: Prices generally start from around ₹2.25 Cr – ₹3.50 Cr+, depending on size and configuration. Q: How many units are there in the project? A: The development includes approximately 101 exclusive residential units. Q: What amenities does it offer? A: Amenities include a clubhouse, swimming pool, gym, spa, theatre, library, banquet hall, open-air gym, landscaped gardens, and kids’ play area. Q: Where is Paras Floret located and how’s the connectivity? A: It is located in Sector 59, Gurgaon, with excellent connectivity to metro, business hubs, schools, and major roads. FAQ
- 1121 Area (sq.ft.)
- 2 BHK BHK
- Property Facing East Property Facing
- Semi Furnished Furnishing
- Under Devep Possession
Trump Tower Sector 65, Gurgaon
- Golf Course Extension Road, Gurugram
- "Zero Brokerage" Offer Zone
- USP's Branded Residences Luxury Living Prime Sector 65 Strong Connectivity Limited Units Exclusive Living USP's
- FAQ Q: What types of apartments are available at trump tower? A: The project offers luxury 3 BHK, 4 BHK, and duplex residences Q: Where is the project located? A: It is located in Sector 65, Gurgaon, on Golf Course Extension Road Q: How many units are there in the project? A: There are approximately 262 ultra-luxury residences across two towers Q: What is the price range? A: Prices start from around ₹11.6 Cr and go higher depending on configuration Q: What amenities are available? A: Residents get access to clubhouse, pool, gym, spa, concierge services, and more FAQ
- 3525 Area (sq.ft.)
- 3 BHK BHK
- Property Facing North East Property Facing
- Semi Furnished Furnishing
- Under Devep Possession
There are no reviews yet.